Home
A propos
Projets
Eco-construction
Equipe
PHILIPPE LE ROY - ARCHITECTES
Home
A propos
Projets
Eco-construction
Equipe
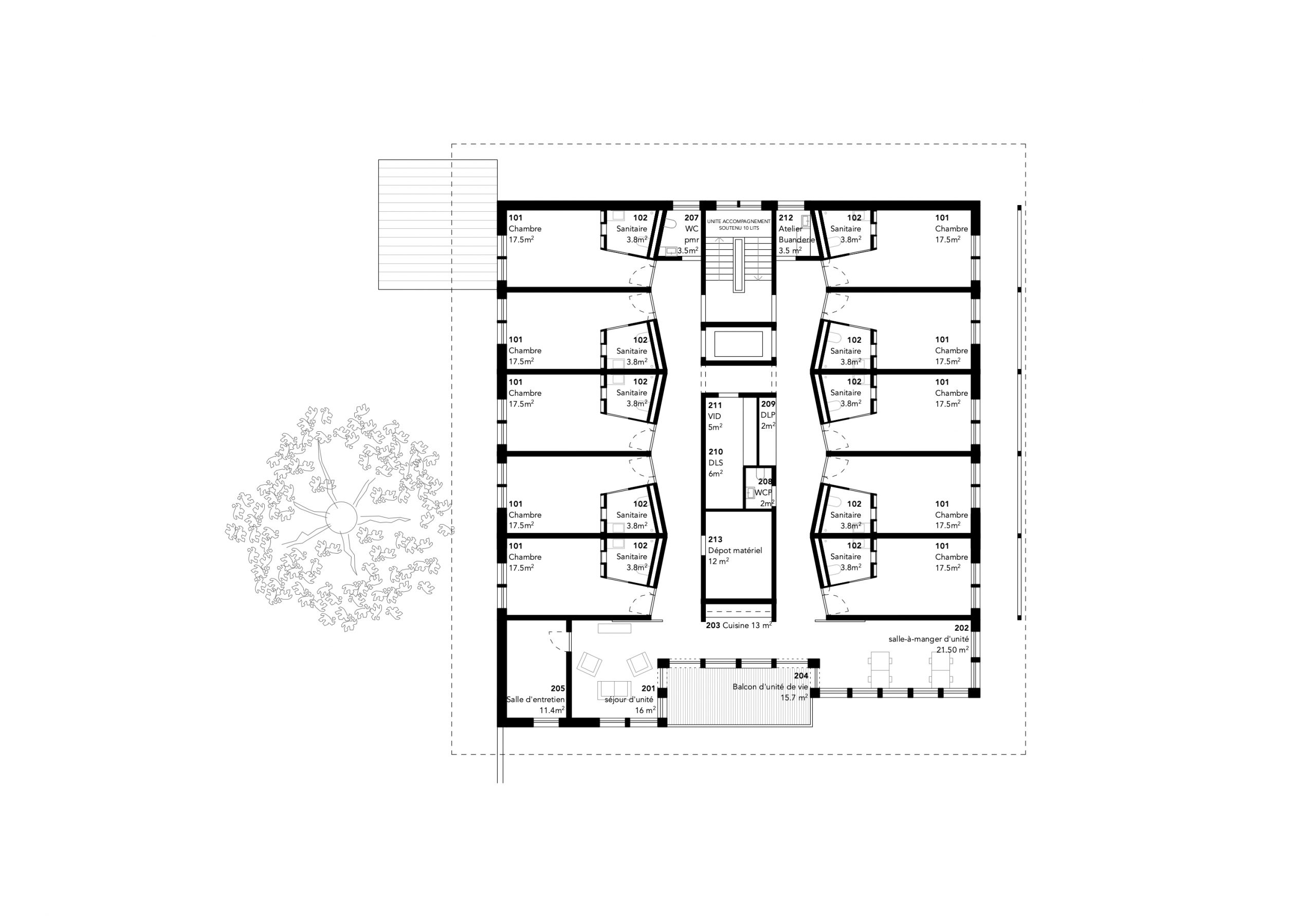
EMS Rossinière